| штат: | |
|---|---|
| Количество: | |
FUE05 — это безгусеничный грузовой автомобиль для перевозки взрывчатых веществ с максимальной грузоподъемностью 5 тонн. В автомобиле используются международные компоненты премиум-класса, центральное шарнирно-сочлененное шасси и полностью гидравлический усилитель рулевого управления. Оснащенный полностью закрытыми многодисковыми тормозами мокрого типа с технологией SAHR, автомобиль приводится в движение двигателем Cummins с турбонаддувом и низким уровнем выбросов, соответствующим стандартам выбросов China IV. Кабина, сертифицированная по FOPS/ROPS, оснащена многофункциональным дисплеем для мониторинга оборудования в режиме реального времени и помощи в устранении неполадок.
Универсальная система быстросъемного шасси обеспечивает быструю замену, поддерживая множество функциональных навесных устройств для разнообразных операций. Механизм быстрой смены позволяет заменить инструмент в течение пяти минут.
| Детали | категории |
|---|---|
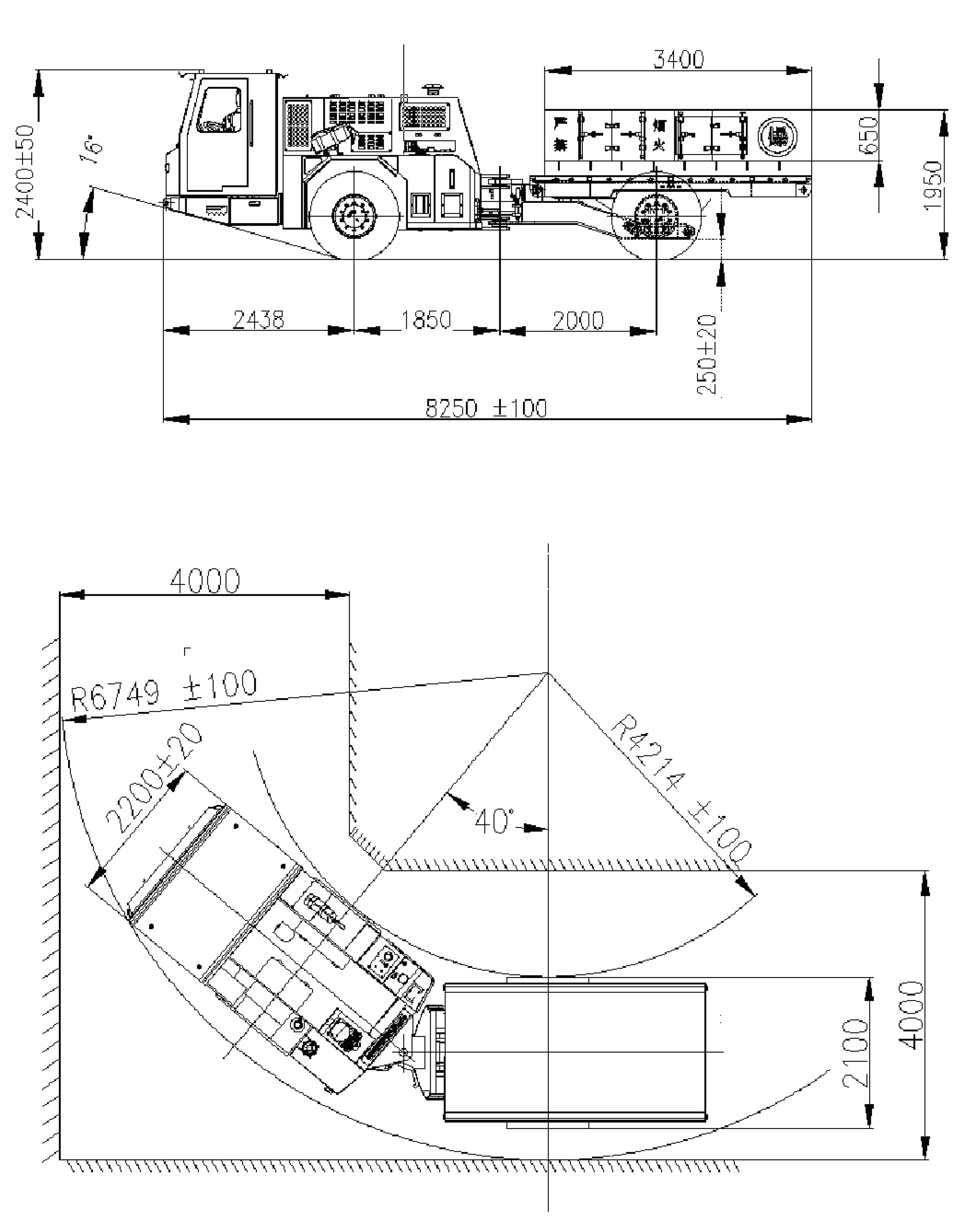
| Производительность | Грузоподъемность: 5000 кг. Размер отсека: 3200 × 5500 × 1800 мм. Ширина двери купе: 1700 мм Количество дверей купе: 5 шт. Максимальная тяговая сила: 110 кН |
| Измерение | Длина: 8250 ± 100 м. мШирина: 2200 ± 20 мм Высота: 2400 ± 50 мм Дорожный просвет: 250 ± 20 мм Угол рулевого управления: ± 40 ° Внутренний радиус поворота: 4214 ± 100 мм. Внешний радиус поворота: 6749 ± 100 мм. |
| Скорость (уровень, полная нагрузка) | 1-я передача: 5 ± 1 км/ задняя 2-я передача: 12 ± 1 км/ч 3-я передача: 24 ± 1 км/ч |
| Система питания | Двигатель: Cummins B5.9CS 4EFI, с водяным охлаждением, Tier 4, Euro Stage IV 129 кВт при 2200 об/мин, 760 Н·м при 1600 об/мин |
| Выхлопная система | DOC каталитический очиститель и глушитель |
| Емкость топливного бака | 140 л |
| Гидравлическая система | Полностью гидравлический привод рулевого управления Заправочный клапан и рабочий тормозной клапан: MICO Тормозной аккумулятор: Leemin (Фильтр возврата масла) Бак гидравлического масла: 200 л. |
| Электрическая система | Электрическое реле и автоматический выключатель: Schneide Контроллер: Финляндия EPEC Обнаружение неисправностей двигателя |
| Каюта (закрытая) | Сертификация FOPS/ROPS Холодный кондиционер Две двери в кабину Движение вперед Трехточечная контактная система доступа для быстрого попадания в кабину Сиденье с низкочастотной подвеской Резервная камера автомобиля Двухместная кабина Стеклоочиститель вне салона |
| Безопасность | Проблесковый маяк Переносное противопожарное средство 1×6 кг Датчик дымаСистема вентиляции |
| Параметры | Автоматическая система противопожарной защиты mАвтоматическая централизованная смазка |


FUE05 — это безгусеничный грузовой автомобиль для перевозки взрывчатых веществ с максимальной грузоподъемностью 5 тонн. В автомобиле используются международные компоненты премиум-класса, центральное шарнирно-сочлененное шасси и полностью гидравлический усилитель рулевого управления. Оснащенный полностью закрытыми многодисковыми тормозами мокрого типа с технологией SAHR, автомобиль приводится в движение двигателем Cummins с турбонаддувом и низким уровнем выбросов, соответствующим стандартам выбросов China IV. Кабина, сертифицированная по FOPS/ROPS, оснащена многофункциональным дисплеем для мониторинга оборудования в режиме реального времени и помощи в устранении неполадок.
Универсальная система быстросъемного шасси обеспечивает быструю замену, поддерживая множество функциональных навесных устройств для разнообразных операций. Механизм быстрой смены позволяет заменить инструмент в течение пяти минут.
| Детали | категории |
|---|---|
| Производительность | Грузоподъемность: 5000 кг. Размер отсека: 3200 × 5500 × 1800 мм. Ширина двери купе: 1700 мм Количество дверей купе: 5 шт. Максимальная тяговая сила: 110 кН |
| Измерение | Длина: 8250 ± 100 м. мШирина: 2200 ± 20 мм Высота: 2400 ± 50 мм Дорожный просвет: 250 ± 20 мм Угол рулевого управления: ± 40 ° Внутренний радиус поворота: 4214 ± 100 мм. Внешний радиус поворота: 6749 ± 100 мм. |
| Скорость (уровень, полная нагрузка) | 1-я передача: 5 ± 1 км/ задняя 2-я передача: 12 ± 1 км/ч 3-я передача: 24 ± 1 км/ч |
| Система питания | Двигатель: Cummins B5.9CS 4EFI, с водяным охлаждением, Tier 4, Euro Stage IV 129 кВт при 2200 об/мин, 760 Н·м при 1600 об/мин |
| Выхлопная система | DOC каталитический очиститель и глушитель |
| Емкость топливного бака | 140 л |
| Гидравлическая система | Полностью гидравлический привод рулевого управления Заправочный клапан и рабочий тормозной клапан: MICO Тормозной аккумулятор: Leemin (Фильтр возврата масла) Бак гидравлического масла: 200 л. |
| Электрическая система | Электрическое реле и автоматический выключатель: Schneide Контроллер: Финляндия EPEC Обнаружение неисправностей двигателя |
| Каюта (закрытая) | Сертификация FOPS/ROPS Холодный кондиционер Две двери в кабину Движение вперед Трехточечная контактная система доступа для быстрого попадания в кабину Сиденье с низкочастотной подвеской Резервная камера автомобиля Двухместная кабина Стеклоочиститель вне салона |
| Безопасность | Проблесковый маяк Переносное противопожарное средство 1×6 кг Датчик дымаСистема вентиляции |
| Параметры | Автоматическая система противопожарной защиты mАвтоматическая централизованная смазка |


Компания FAMBITION, расположенная в зоне экономического развития Лайси города Циндао, является хорошо известным и специализированным производителем безгусеничного горнодобывающего оборудования.
Авторские права © 2024 QINGDAO FAMBITION HEAVY MACHINERY CO.,LTD. Все права защищены. | Sitemap | политика конфиденциальности